We share insights, analysis and research – tailored to your unique interests – and make case studies and whitepapers to help you deepen your knowledge and impact.
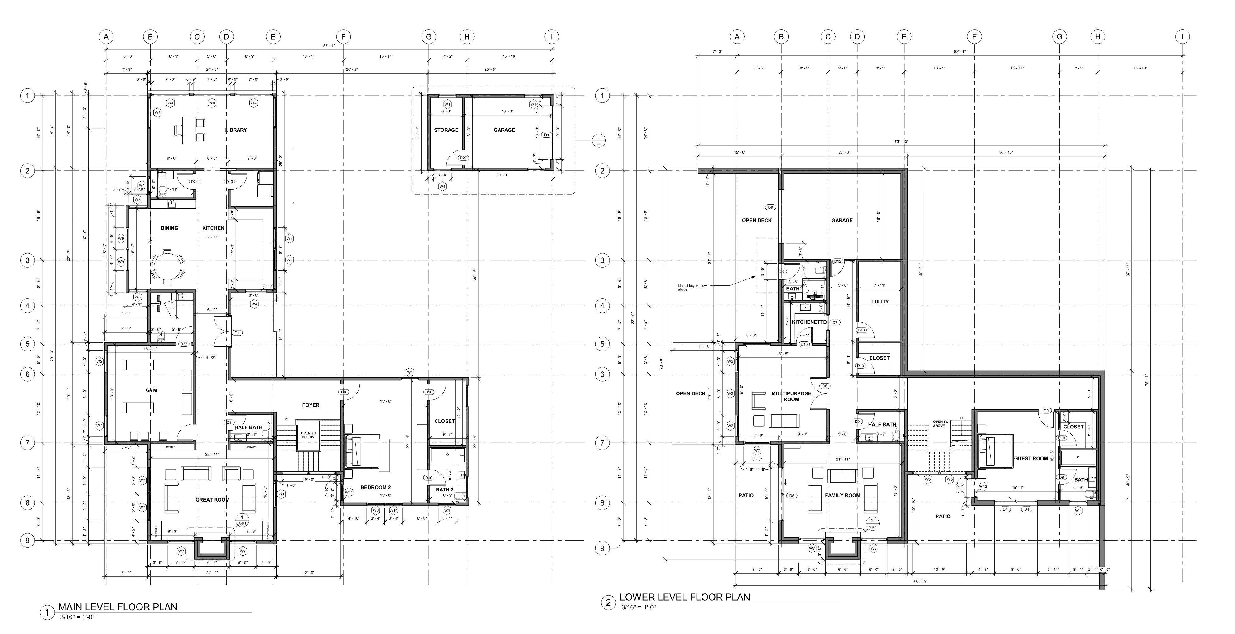
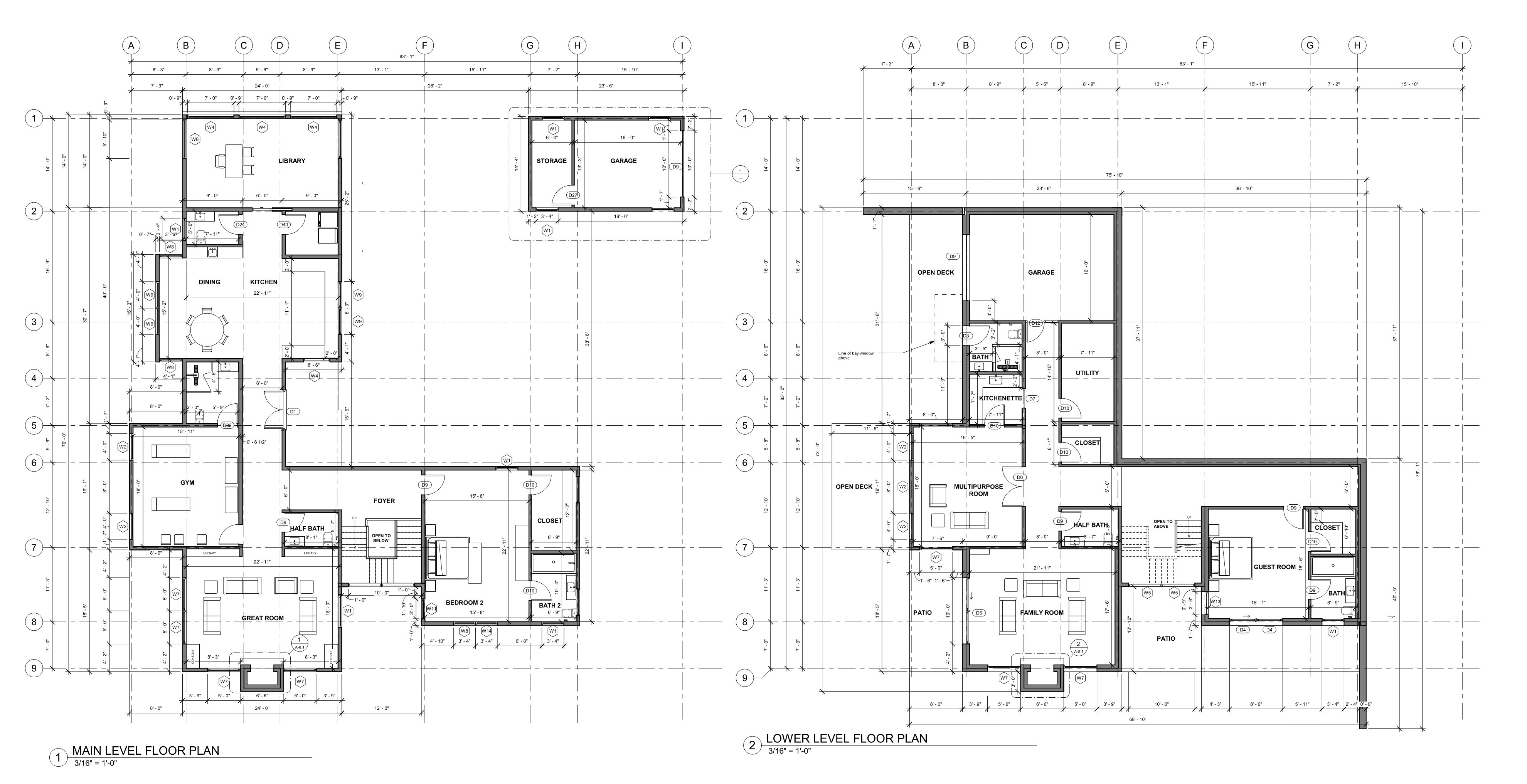
Location: New York, USA
Project Size: ~9,500 sq. ft.
Sector: Residential | Luxury Single-Family

Set on a naturally contoured site, this luxury residence harmonizes architecture with terrain through skillful cut-and-fill techniques. The L-shaped layout is anchored by a landscaped pathway leading to a welcoming entrance, balancing informal charm with modern opulence. Spaces are thoughtfully zoned into private, semi-private, and service areas—ensuring fluid circulation rather than rigid compartmentalization.
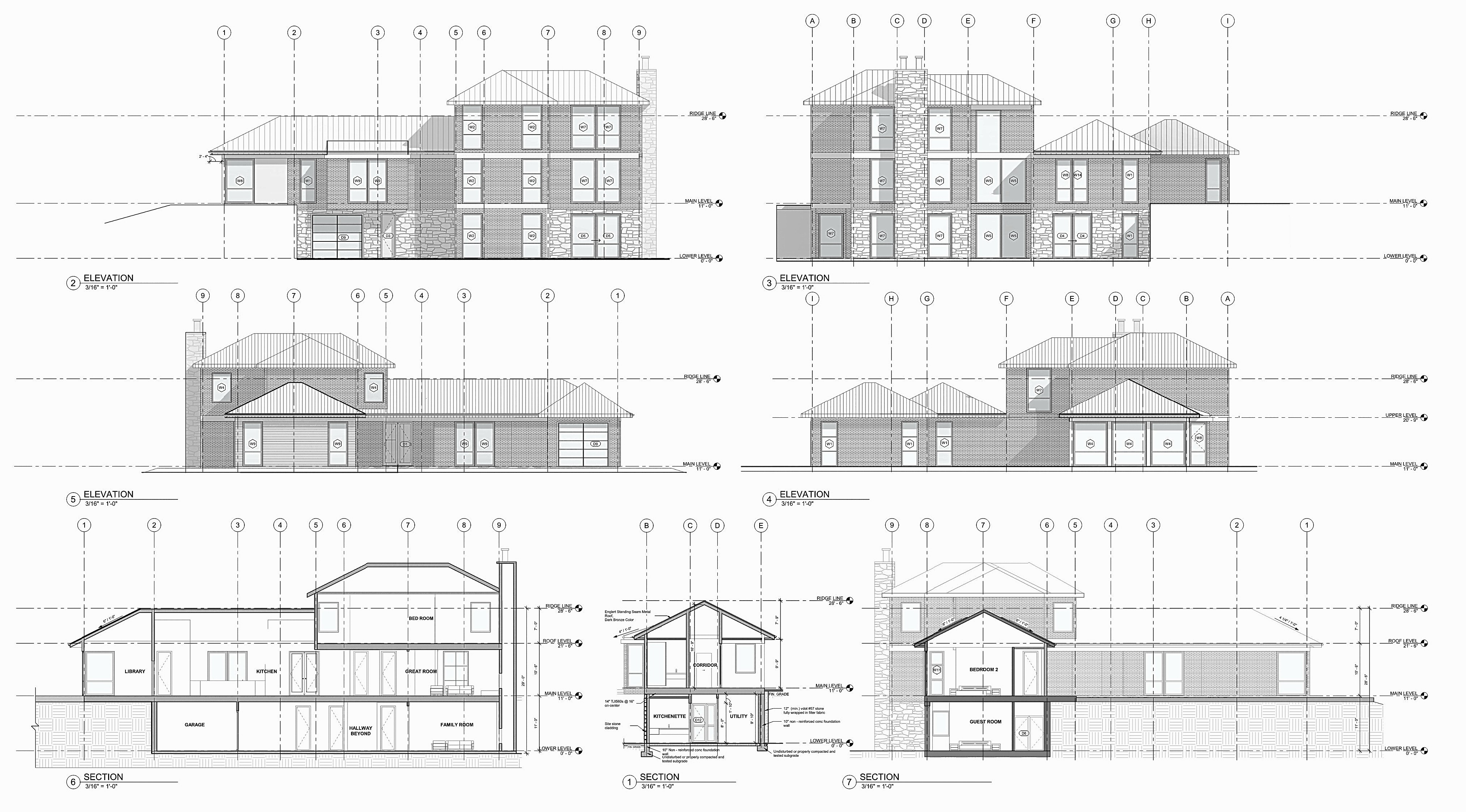
Articulated pitched roofs unify the home’s visual identity, giving it a distinct yet cohesive presence.
Integrating the residence into a sloped terrain while ensuring stability and usability.
Expansive glazing risked compromising privacy and thermal comfort.
Needed seamless circulation between private, semi-private, and service areas without creating isolated pockets.
Multiple pitched roofs and varying volumes risked visual dissonance.
Rather than flattening the site, the design embraced its natural slope through tiered levels that celebrate elevation differences. Landscaped retaining walls softened the transition between cut-and-fill zones, while also stabilizing terrain. Zoning strategies used spatial layering and subtle thresholds to encourage connection across spaces. Roofs were deliberately varied in orientation and scale to reduce bulk and articulate massing. Glazing was positioned to capture daylight and views, while landscape buffers and elevation changes maintained privacy.
| Typical Approach | Vee Technologies' Advantage |
|---|---|
|
Flattened grading to simplify construction |
Tiered cut-and-fill strategy integrating the slope as a design feature |
|
Uniform zoning separating private and public areas |
Layered zoning creating fluid transitions between semi-private and private |
|
Standardized roof pitches |
Varied roof orientations for articulated massing and reduced visual weight |
|
Large openings without screening |
Strategic glazing + landscape buffers to balance openness and privacy |

Delivered a residence that feels rooted in its landscape while retaining a sense of openness and luxury.
Achieved functional efficiency across multiple levels without compromising flow.
Created a cohesive architectural expression using pitched roofs and volumetric detailing.
Optimized natural light, ventilation, and views while protecting privacy.
This project demonstrates that topography can inspire design rather than constrain it. By leveraging the slope, layering spaces, and balancing openness with privacy, Vee Technologies transformed a challenging site into a home that is both sculptural and livable —a residence that belongs as much to its landscape as it does to its owners.



