We share insights, analysis and research – tailored to your unique interests – and make case studies and whitepapers to help you deepen your knowledge and impact.
Location: USA
Project Size: 419,000 sq. ft.
Sector: Residential | Urban High-Rise

This dual-tower high-rise residential development reimagines vertical living by balancing architectural elegance with structural ingenuity. The design accommodates a diverse range of units-from studios to three-bedroom apartments-with the top two floors reserved for expansive duplex residences.
Podium levels serve as a vibrant base, offering lobbies, salons, fitness centers, and private theatres, while landscaped plazas and shaded sit-out areas encourage community interaction and relaxation. The towers are envisioned not merely as buildings but as ecosystems: vertical neighborhoods that prioritize liveability, inclusivity, and architectural identity. Every design decision, from unit distribution to shared amenity integration, contributes to creating a lifestyle that is elevated yet deeply human.
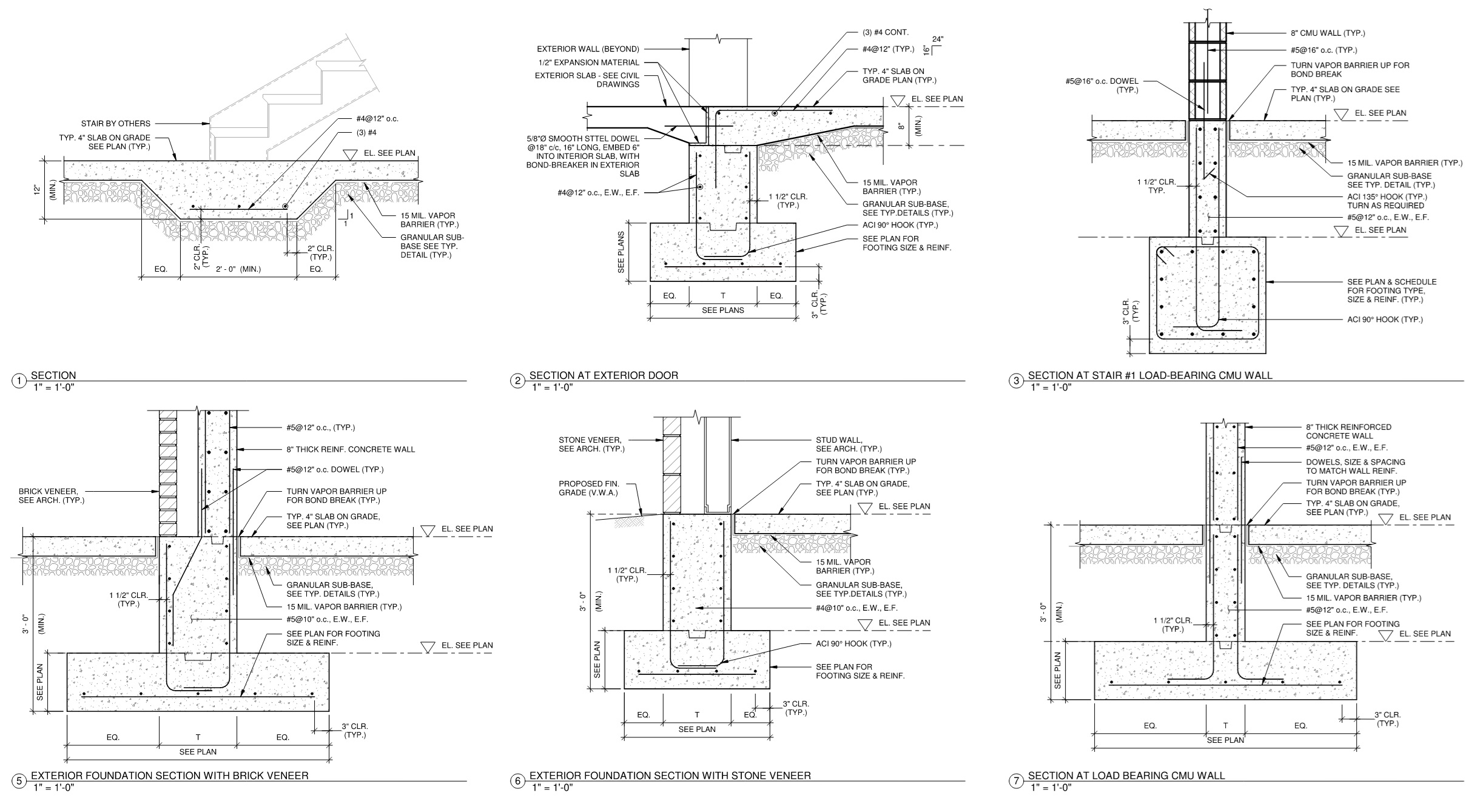
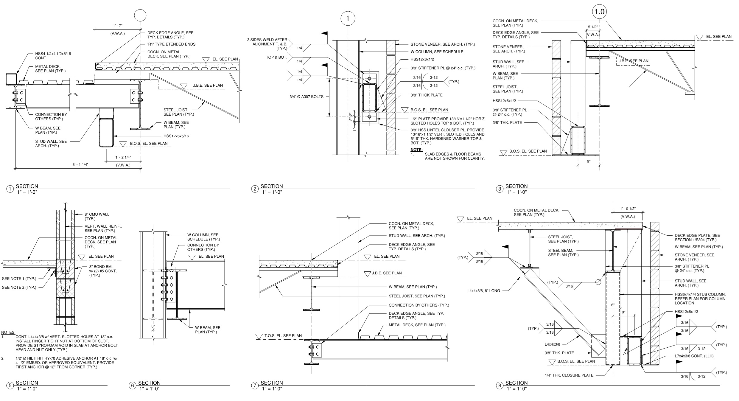
Ensuring stability under vertical loads while resisting lateral forces such as wind and seismic activity.
Managing load distribution across two interconnected towers required advanced structural modeling.
Achieving large, column-free amenity spaces without compromising structural performance.
Aligning architectural vision with the demands of cost-efficiency and occupant comfort.
The structural framework was designed as both a technical solution and an enabler of community-driven architecture. By integrating advanced materials, optimized core placement, and simulation-driven design, the towers achieved both elegance and efficiency.
| Typical Approach | Vee Technologies' Advantage |
|---|---|
|
Standard core placement with limited adaptability |
Core optimization improved circulation and unlocked unobstructed layouts |
|
Conventional reinforced concrete systems |
High-strength concrete and composites reduced bulk, increasing usable floor space |
|
Generic sway control strategies |
Shear walls strategically placed to optimize wind resistance and occupant comfort |
|
Post-design coordination of disciplines |
BIM and parametric modeling enabled clash-free reinforcement detailing and faster timelines |

Delivered structural clarity and stability for dual-tower configuration in a high-density context.
Enhanced spatial efficiency by reducing structural footprint and maximizing usable floor area.
Ensured occupant comfort at high elevations through precise wind load management.
Achieved construction-ready documentation with minimized clashes using BIM-driven workflows.
Enabled a podium structure that provides large, column-free amenity spaces seamlessly integrated with the towers above.
This project demonstrates that structural engineering can serve as a catalyst for livability, not just stability. By aligning core optimization, advanced materials, and technology-driven coordination with a vision of community and identity, Vee Technologies delivered more than two towers—they delivered a vertical community designed for resilience, comfort, and connection.



