We share insights, analysis and research – tailored to your unique interests – and make case studies and whitepapers to help you deepen your knowledge and impact.
Location: Pennsylvania, USA
Project Size: 725,000 sq. ft.
Sector: Commercial | Corporate Office

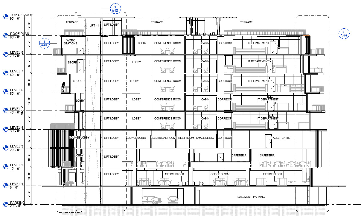
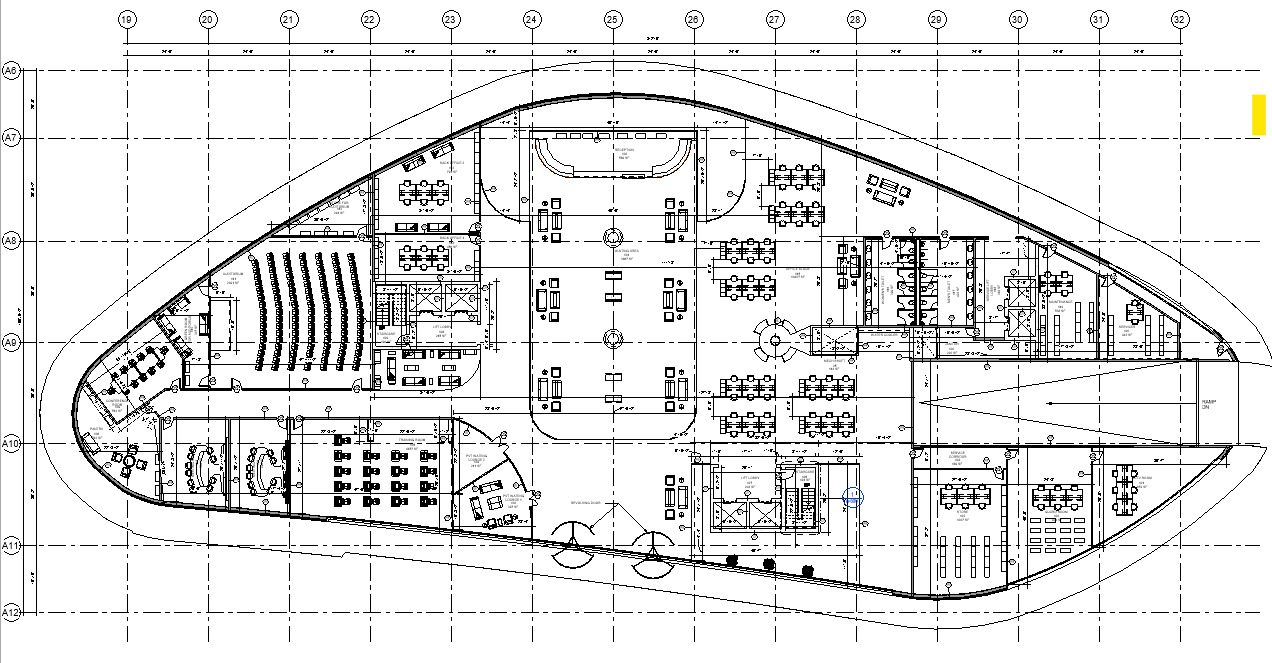
Our client envisioned a bold, biophilic corporate headquarters, an architectural landmark inspired by organic forms and designed to serve as the nucleus of larger corporate development. With its curvilinear structure, tiered breakout terraces, and twisted floor plates, the project called for a partner who could go beyond conventional modeling and deliver on the promise of form meeting function.
Where other firms saw complexity, we saw opportunity.
Each floor plate was offset and twisted, creating non-repetitive, highly dynamic slab profiles that demanded custom modeling precision.
Integrating mechanical, structural, and architectural systems within the undulating form posed significant spatial zoning and segregation challenges.
The expansive glass facade had to balance thermal performance with transparency, airflow, and a vertical green landscape.
The client required future flexibility and visual connectivity without compromising on environmental targets.
Unlike firms that rely heavily on conventional toolkits,Vee Technologies implemented a high-performance design workflow rooted in adaptive BIM logic, environmental analytics, and digital fabrication intelligence.
| Typical Approach | Vee Technologies' Advantage |
|---|---|
|
Static modeling workflows in 2D/3D tools that struggle with iterative geometries |
Fully parametric modeling in Revit, allowing dynamic manipulation of twisted floor plates and curved slabs |
|
Manual zoning coordination leading to discipline clashes |
Rule-based spatial logic in BIM with clash detection, reducing rework and increasing zoning clarity |
|
Off-the-shelf facade specs applied late in the process |
Custom-curved facade units designed early, using climate data for glass-to-metal ratios and daylight optimization |
|
Sustainability treated as an add-on |
Biophilic design and ventilation integrated from concept phase using environmental massing models |

Delivered a future-ready, LEED-aligned corporate hub that meets both performance and aesthetic goals.
Integrated landscape and breakout zones on every level without compromise to form or cost.
Reduced iteration cycles by 30% compared to traditional firms, thanks to our parametric and modular detailing approach.
Seamless spatial coordination across disciplines despite a non-linear geometry, something that would typically require costly design revisions.
This project is a testament to the power of precision BIM and comparative differentiation. At Vee Technologies, we do not just model buildings, we engineer performance, flexibility, and beauty into every layer of the design. When complexity rises, our value does too.